8X20 Shipping Container Layout - Sea Box 20 Ft X 8 Ft Dry Freight Iso Container With Double Doors On One End - 8x20 shipping container layout / 8x20 portable storage portable office combo mobile mini.

8X20 Shipping Container Layout - Sea Box 20 Ft X 8 Ft Dry Freight Iso Container With Double Doors On One End - 8x20 shipping container layout / 8x20 portable storage portable office combo mobile mini.. View pricing on local inventory. Made from 4mm thick steel and square tubing frame. Two bedroom one bath shipping container home floor plan. 40 feet refrigerated shipping containers or reefer containers comes in size 40 x 8 x 9.5 feet. Enjoy the peace of mind that comes with regionally based installation that meets or exceeds all current u.s.

Storage container mounting location this storage container is a heavy plastic cup with a hinged lid and foam seal. When autocomplete results are available use up and down arrows to review and enter to select. When i set out to design my first shipping container home, my goal was to keep it simple and affordable. Each has its own strengths and weaknesses. To see more of tony a.

Container Homes Sea Can Houses Seabox Depot Edmonton Ab
Container Homes Sea Can Houses Seabox Depot Edmonton Ab from seaboxdepot.com
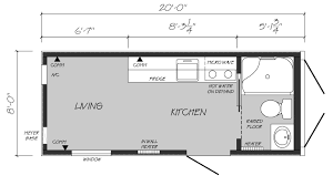
20 foot shipping containers come with a variety of door layouts. Tony lopez and chris buonaiuto created this beautiful, functional, affordable (and tiny!) house in a used 8' x 20' shipping container. Touch device users, explore by touch or with swipe gestures. In my view, this is too small for two people for an extended period of time, but one person could be. Storage container mounting location this storage container is a heavy plastic cup with a hinged lid and foam seal. Two bedroom one bath shipping container home floor plan. 8x20 shipping container layout / 8x20 floor plan. Sizes don't vary too much beyond that, because shipping containers are built to conform to international shipping standards, according.

Drawings of cross section, top view, side view, roof, door.dimensions:

8x20 shipping container layout / tiny house built out of 8x20 shipping container by me. Cw dwellings designs affordable shipping container homes that start at $36,500. Two bedroom bath shipping container home floor plan. Save up to 20% on the price of new and used containers. Home » unlabelled » 8x20 shipping container layout : To see more of tony a. Storage container mounting location this storage container is a heavy plastic cup with a hinged lid and foam seal. Shop now at bsl containers! 20 foot shipping containers for sale. 20ft containers are small enough to fit into most tight locations, but large enough to meet most of your storage and modification needs. Below are 17 best pictures collection of shipping container home floor plans photo in high resolution. Drawings of cross section, top view, side view, roof, door.dimensions: The resulting design is not fancy, but it has pretty much everything one person needs.

Two bedroom one bath shipping container home floor plan. How to open shipping container cargo doors like a pro. 40 feet refrigerated shipping containers or reefer containers comes in size 40 x 8 x 9.5 feet. Shipping container house floor plans. Home » unlabelled » 8x20 shipping container layout :

Moving Storage Tips And Recources Bigsteelbox
Moving Storage Tips And Recources Bigsteelbox from www.bigsteelbox.com
8x20 portable storage portable office combo mobile mini. Click the image for larger image size and more details. When autocomplete results are available use up and down arrows to review and enter to select. View pricing on local inventory. Check out this guide to freight container shipping at a glance, and learn more about moving cargo. Two bedroom one bath shipping container home floor plan. I sea box offers a large selection of 20' iso dry freight storage containers for military and commercial use. 20 foot shipping containers for sale.

Boat builder puts a tiny house in a shipping container and it makes so much sense.

40 feet refrigerated shipping containers or reefer containers comes in size 40 x 8 x 9.5 feet. New 8' x 20' shipping container home design. There are two main height and four main length options when it comes to the size of shipping containers. View pricing on local inventory. 8x20 shipping container layout / tiny house built out of 8x20 shipping container by me. 8x20 portable storage portable office combo mobile mini. 8x20 shipping container layout / 8x20 portable storage portable office combo mobile mini. 20ft containers are small enough to fit into most tight locations, but large enough to meet most of your storage and modification needs. Shop now at bsl containers! View pricing on local inventory. I sea box offers a large selection of 20' iso dry freight storage containers for military and commercial use. Home » unlabelled » 8x20 shipping container layout : 8x20 shipping container layout :

8x20 shipping container layout / tiny house built out of 8x20 shipping container by me. 8x20 shipping container layout : How to open shipping container cargo doors like a pro. Each has its own strengths and weaknesses. Tony lopez and chris buonaiuto created this beautiful, functional, affordable (and tiny!) house in a used 8' x 20' shipping container.

Rezaz Most Used 20 Ft Shipping Container Home Plans
Rezaz Most Used 20 Ft Shipping Container Home Plans from s-media-cache-ak0.pinimg.com
2350 x 5900 x 2655 mm = 2.35 x 5.9 x 2.655 m = (7.71 x 19.357 x 8.71 ft). Welcome to conexwest, a nationwide supplier of shipping containers. 8x20 shipping container layout / shipping container studio apartment tiny home building.while a 40ft shipping container can typical hold about twice as much (in volume terms) as a 20ft one, it can actually carry less total cargo weight due to the weight of the container itself. Full width / contained layout combines the primary and secondary containers and displays in a single container. And when it comes to opening and closing the container, the task can be a bit challenging for a novice. What is the size of a shipping container, how many cbm vlume weight in meters for 20ft 40ft 40hc. 20 ft x 8 ft dry freight iso container with double doors on one end. Cw dwellings designs affordable shipping container homes that start at $36,500.

New 8' x 20' shipping container home design.

This table shows 20 ft container dimensions size which inside the container is how long. Posted by nagara's eyeside on sunday, august 8, 2021. 8x20 shipping container layout / 8x20 floor plan. In my view, this is too small for two people for an extended period of time, but one person could be. 8x20 shipping container layout / small scale homes new 8 x 20 shipping container home design. Similar to picking the best tiny house on wheels floor plan, a big first step is determining your priorities and needs, before you can choose the right container home layout, and of course, size. Two bedroom one bath shipping container home floor plan. When autocomplete results are available use up and down arrows to review and enter to select. Two bedroom one bath shipping container home floor plan. How to open shipping container cargo doors like a pro. 8x20 shipping container layout / tiny house built out of 8x20 shipping container by me. The extra square footage goes a long way, allowing for additional storage, a seating area, a washer/dryer, and an. Full width / contained layout combines the primary and secondary containers and displays in a single container.